
Cleave Wood
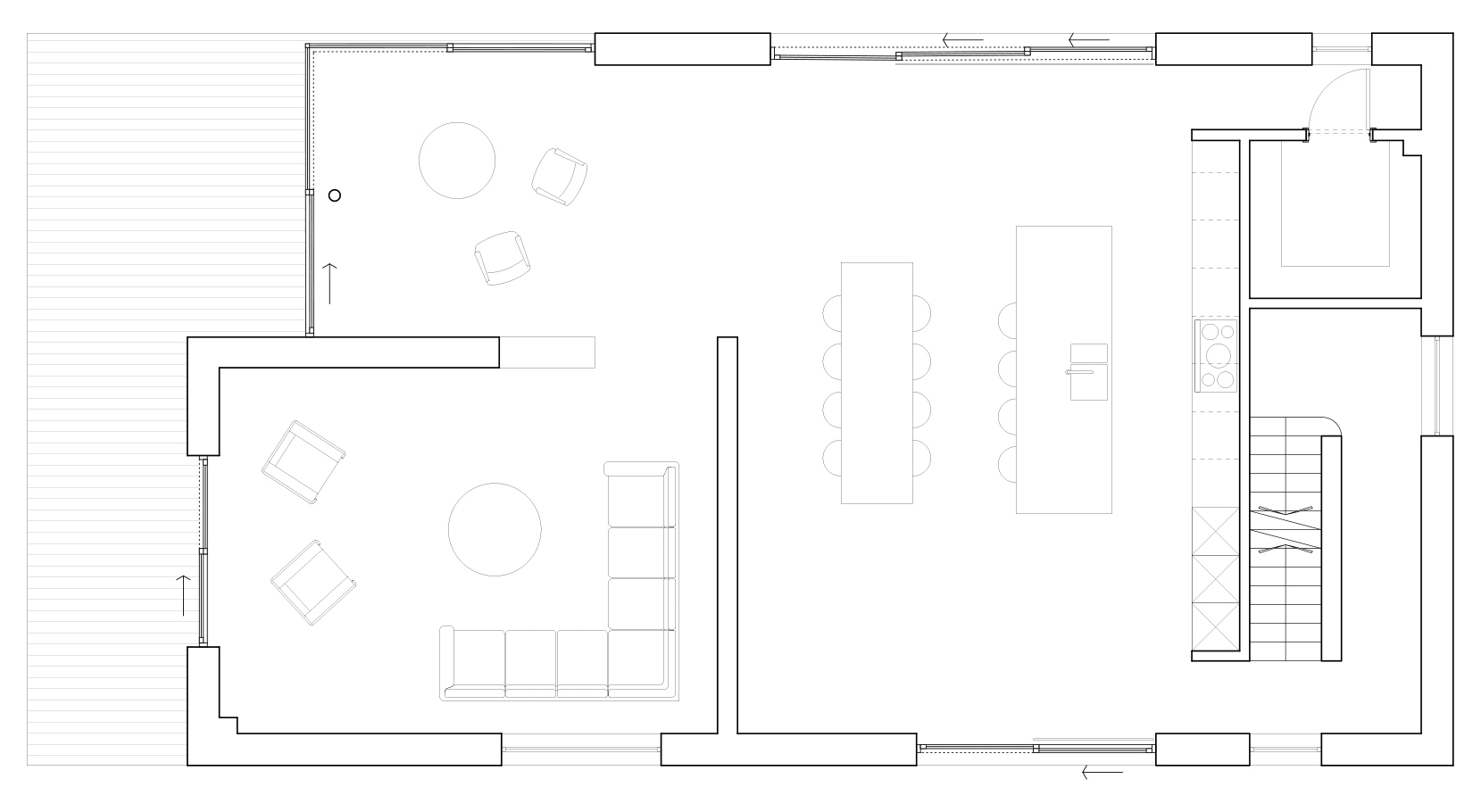
The site is situated on a former quarry and has applications dating back to 1989 for residential development. The site had a number of approved schemes, with a number of different agents involved but was in need of a fresh approach. The client purchased the site with 3 of the 12 houses already built, however felt that the designs could be improved. We were therefore tasked to improve the currently approved scheme, reimagining both the internal layouts as well as appearances to maximise the site and its value.
Project Location: Bideford, North Devon
Project Size: Varies
Service: Design to completion
Completion: Est Aug 2024
The result is 2 different house types positioned on different plateaus of the site, tied together through similar characteristics. Each unit takes no influence from the previous designs, and has been shaped to maximise the sites’ attributes, such as raised western terrace off the living areas and the use of more muted, subtle tones externally to help the building settle more comfortable into the rural context.




